Lancelot Maison contemporaine

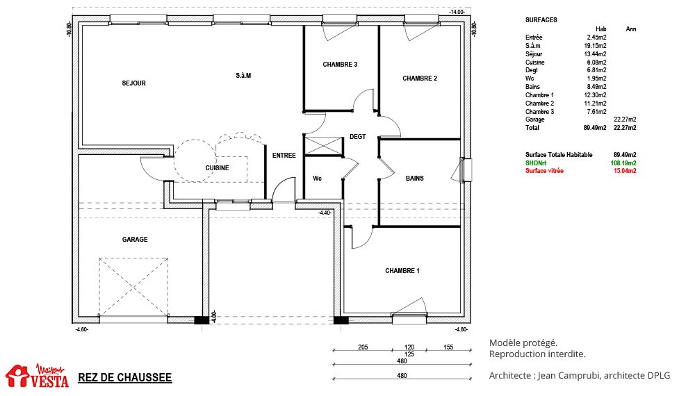
Surface : 89mยฒ + 22.27 mยฒ de surface annexe. Cuisine ouverte ou fermรฉe, 3 ou 4 chambres, garage. Les cote et les surfaces sont donnรฉes ร  titre indicatif et peuvent รชtre adaptรฉes en fonction de vos demandes.

Plan : Jean Camprubi, Architecture DPLG

Modรจles protรฉgรฉ. Reproduction interdite.

DEVIS GRATUIT

Vous souhaitez faire construire et ne savez pas par oรน commencer ?

Plans.fr est lร  pour vous aider et vous propose d'obtenir un devis gratuit en quelques clics !

Il vous suffit de remplir le formulaire ci-dessous. Promis, aucun spam !

ยซย *ย ยป indique les champs nรฉcessaires

Newsletter

Besoin d'aide pour choisir votre future maison ?

Vous pouvez รฉgalement utiliser notre configurateur en ligne afin de prรฉciser votre projet et le type de maisons et de configuration que vous souhaitez. 

Configurateur de maison 100% en ligne
Une exclusivitรฉ Plans.fr

Plans et Modรจles de Maisons
La plus grande base de plans en France

Vous avez une autre question ( presse, partenariats,...) ?
Contactez-nous

Ce modรจles plain-pied peut se prรฉvaloir d’une identitรฉ visuelle original grรขce ร  ses deux avancรฉes formant un atrium chaleureux et prรฉservรฉ, surplombรฉ d’une arche qui donne une personnalitรฉ du plus bel effet ร  l’entrรฉe de votre maison. Grace ร  sa large faรงade, ce modรจles propose des volumes exceptionnels pour un plain-pied de ce type, avec notamment 3 belles chambres et une grande salle de bains. Un modรจles de premier choix pour couvrir confortablement les besoins de la plupart des familles!

Chambres

Performance energetique

Gamme de Prix

Garage

Niveaux

Plan (forme)

Rรฉgion

Surface habitable

Toiture

,

Type de public

Plans et Modรจles de Maisons Familiales
,

,

,

Constructeur

Avis

Il nโ€™y a pas encore dโ€™avis.

Soyez le premier ร  laisser votre avis sur “Lancelot Maison contemporaine”

Votre adresse e-mail ne sera pas publiรฉe. Les champs obligatoires sont indiquรฉs avec *

Vous devez รชtre connectรฉ pour pouvoir ajouter des photos ร  votre avis.

Vous rรชvez de possรฉder faire construire en Moselle ou Merueth-et-Moselle ? Avec Maisons Vesta , votre rรชve peut devenir une rรฉalitรฉ. Nous sommes un constructeur de maisons avec plus de 30 ans d'expรฉrience dans la construction de maisons en rรฉgion Grand-Est avec un savoir-faire unique. Nous offrons une variรฉtรฉ de plans ร  personnaliser ou des maisons ร  concevoir sur-mesure. Notre atout numรฉro 1 ? Un rapport Qualitรฉ/Prix exceptionnel !
Constructeur Maison Meurthe et Moselle et Moselle

Maisons Vesta

Leader de la construction dans les dรฉpartements 54 et 57, Maisons Vesta vous propose des maisons sur mesure ou sur plans catalogue ร  des prix attractifs.ย 

Des maisons de qualitรฉ pour une large catรฉgorie de clientรจles y compris les frontaliers.

Construire en rรฉgion Grand-Est

Constructeur maison 54 et 57

Vous souhaitez faire construire en Moselle ou Meurthe et Moselle ? Maisons Vesta est lร  pour votre projet de construction.

Vous souhaitez obtenir un devis gratuit de la part de ce constructeur.
C'est ici, en deux clics !

ยซย *ย ยป indique les champs nรฉcessaires

Newsletter

ยซย *ย ยป indique les champs nรฉcessaires

Plans 2D

Plans 3D

Obtenir le prix de cette maison

ยซย *ย ยป indique les champs nรฉcessaires

Newsletter

Vues Intรฉrieures

Publicitรฉ

Visite Virtuelle

A dรฉcouvrir sur Plans.fr