DEVIS GRATUIT
Vous souhaitez faire construire et ne savez pas par où commencer ?
Plans.fr est là pour vous aider et vous propose d'obtenir un devis gratuit en quelques clics !
Il vous suffit de remplir le formulaire ci-dessous. Promis, aucun spam !
« * » indique les champs nécessaires
Besoin d'aide pour choisir votre future maison ?
Vous pouvez également utiliser notre configurateur en ligne afin de préciser votre projet et le type de maisons et de configuration que vous souhaitez.
Configurateur de maison 100% en ligne
Une exclusivité Plans.fr
Plans et Modèles de Maisons
La plus grande base de plans en France
Vous avez une autre question ( presse, partenariats,...) ?
Contactez-nous

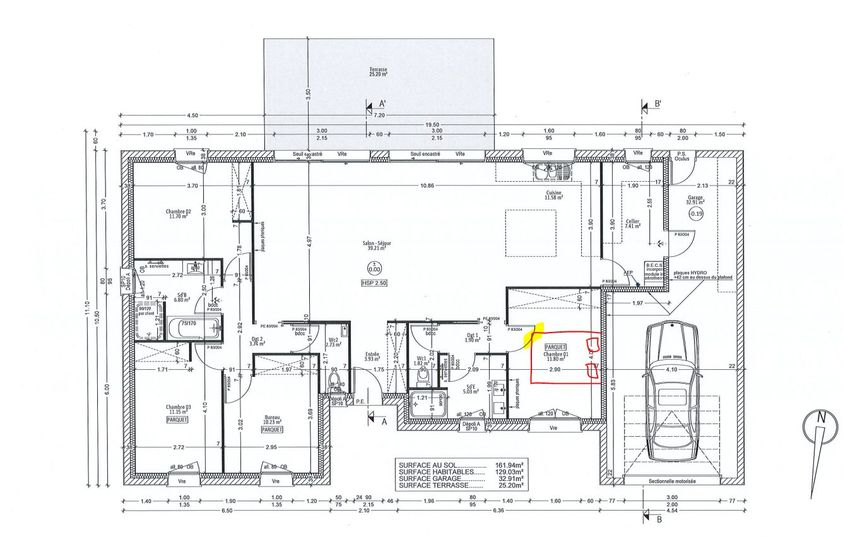
4 réactions sur “Avis sur porte suite parentale”
Porte coulissante ?
Porte coulissante… C est le mieux
Vôtre suite parentale n’est pas très bien optimisée, vous perdez bcp d’espace avec ce couloir et toutes ses portes, si vous mettez les toilettes dans la salle de bain c’est encore mieux, vous avez largement la place de mettre un dressing dans cet espace et mettre votre lit autrement.
La sdb et les toilettes font parties de la suite ? Si oui pourquoi mettre une porte à la chambre en + ? Juste une au niveau du dégagement pour fermer l’accès à la suite parentale , ça fera l’impression de plus grand et moins labyrinthe