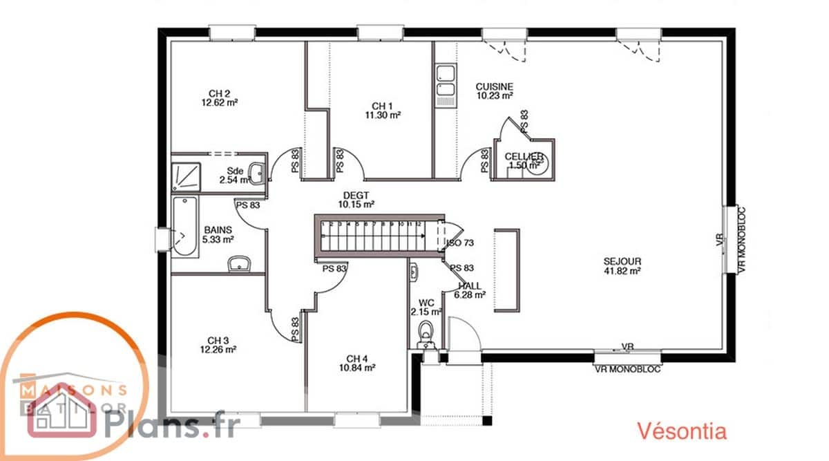
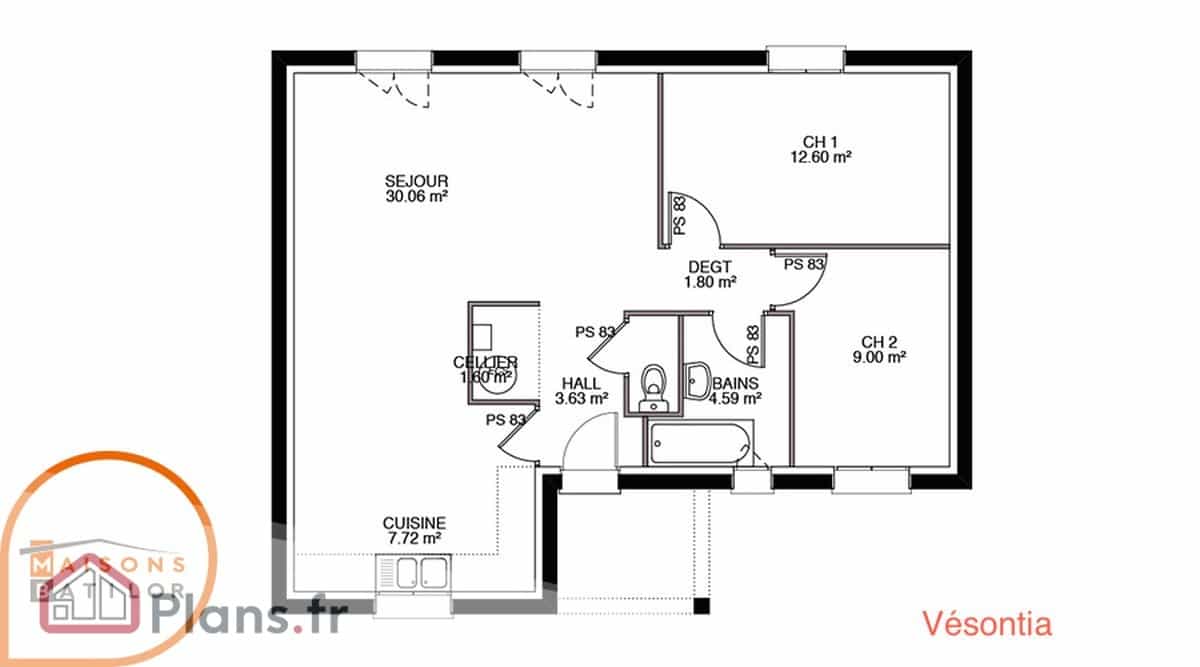
Vésontia -Maison traditionnelle de plain-pied

Maison traditionnelle de plain-pied (premier Prix, familiale) de 72 à 130 m2. Forme du plan : Plan en L

UGS : df5b93f2a078 Catégorie :

DEVIS GRATUIT

Vous souhaitez faire construire et ne savez pas par où commencer ?

Plans.fr est là pour vous aider et vous propose d'obtenir un devis gratuit en quelques clics !

Il vous suffit de remplir le formulaire ci-dessous. Promis, aucun spam !

« * » indique les champs nécessaires

Newsletter

Besoin d'aide pour choisir votre future maison ?

Vous pouvez également utiliser notre configurateur en ligne afin de préciser votre projet et le type de maisons et de configuration que vous souhaitez. 

Configurateur de maison 100% en ligne
Une exclusivité Plans.fr

Plans et Modèles de Maisons
La plus grande base de plans en France

Vous avez une autre question ( presse, partenariats,...) ?
Contactez-nous

Demeure de plain pied, la Vésontia vous permettra d’assouvir toutes vos envies. Cette demeure faible consommation saura vous plaire en de nombreux points.

Chambres

,

Type de public

Plans et Modèles de Maisons Familiales
Plan (forme)

Niveaux

Gamme de Prix

Région

,

Surface habitable

,

,

,

,

,

Toiture

Performance energetique

Garage

,

,

Constructeur

Vous recherchez un constructeur de maisons neuves capable de répondre à tous vos besoins ? Ne cherchez pas plus loin que Batilor ! Nous sommes l'un des principaux constructeurs de maisons neuves en Franche Comté et nous construisons des maisons neuves dans le Doubs, le Jura, à Belfort, dans les Vosges et le Haut Rhin. Nous sommes fiers de la qualité de notre travail et de l'attention que nous portons aux détails et vous pouvez donc être assuré que votre nouvelle maison répondra aux dernières normes et à vos exigences. Nous offrons une vaste gamme de modèles pour répondre aux exigences climatiques et topographique des régions Bourgogne-Franche Comté, Alsace et Grand Est.
Constructeur Maison Doubs, Jura, Belfort, Côte d'or, Vosges et Haut-Rhin

Maisons Batilor

Leader de la construction dans les départements 21, 25, 39, 68, 88, 90, Batilor bénéficie d'une excellente expertise technique pour construire votre maison sur des terrains en pente ou difficiles. Avec une large gamme de plans et de modèles, Batilor vous propose de devenir propriétaire d'une maison basse consommation au meilleur prix.

Construire en Bourgogne Franche Comté et Grand-Est

Constructeur maison 21, 25, 39,68, 88, 90

Vous souhaitez faire construire dans le Doubs, Jura, à Belfort, en Côte d'or, dans les Vosges ou le Haut-Rhin ? Batilor est là pour votre projet de construction de maison.

Vous souhaitez obtenir un devis gratuit de la part de ce constructeur.
C'est ici, en deux clics !

« * » indique les champs nécessaires

Newsletter

« * » indique les champs nécessaires

Plans 2D

Plans 3D

Obtenir le prix de cette maison

« * » indique les champs nécessaires

Newsletter

Vues Intérieures

Publicité

Visite Virtuelle

A découvrir sur Plans.fr