Valeria -Maison traditionnelle de plain-pied

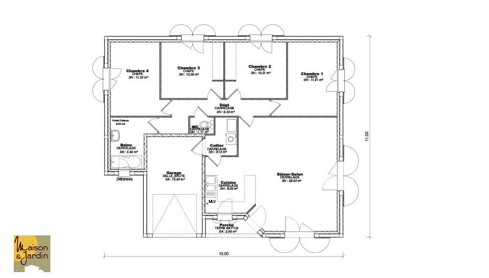
Maison traditionnelle de plain-pied (moyen de gamme, primo-accรฉdants) de 74.57 ร  105.7 m2. Forme du plan : rectangulaire

UGSย : 14851de84ab3 Catรฉgorieย :

DEVIS GRATUIT

Vous souhaitez faire construire et ne savez pas par oรน commencer ?

Plans.fr est lร  pour vous aider et vous propose d'obtenir un devis gratuit en quelques clics !

Il vous suffit de remplir le formulaire ci-dessous. Promis, aucun spam !

ยซย *ย ยป indique les champs nรฉcessaires

Newsletter

Besoin d'aide pour choisir votre future maison ?

Vous pouvez รฉgalement utiliser notre configurateur en ligne afin de prรฉciser votre projet et le type de maisons et de configuration que vous souhaitez. 

Configurateur de maison 100% en ligne
Une exclusivitรฉ Plans.fr

Plans et Modรจles de Maisons
La plus grande base de plans en France

Vous avez une autre question ( presse, partenariats,...) ?
Contactez-nous

Fonctionnel et dรฉclinable dans diffรฉrentes versions, la Valeria est une demeure que l’on conseillera aux primo-accรฉdants. Son point fort? Son rapport qualitรฉ-prix compรฉtitif.

Chambres

,

Type de public

Plan (forme)

Niveaux

Gamme de Prix

Rรฉgion

Toiture

Garage

Surface habitable

,

,

,

Constructeur

Maison et Jardin est un constructeur de maisons individuelles situรฉ dans l'Allier, le Puy de Dรดme, Saรดne et Loire et Haute Loire. Nos maisons sont conรงuesย  pour รชtre confortables et รฉconomiques avec une isolation optimale pour affronter les conditions de la rรฉgion Auverge-Rhรดne-Alpes.
Constructeur Maison Auvergne

Maison et Jardin

Leader de la construction dans les dรฉpartements 03,63,43 et 71, Maison et Jardin vous propose des maisons traditionnelles ou contemporaines au meilleur rapport qualitรฉ/prix du marchรฉ.

Construire en Auvergne et Bourgogne

Constructeur maison 03,43,63 et 71

Vous souhaitez faire construire dans l'Allier, Puy e Dรดme; Saรดne et Loire ou Haute-Loire ? Maison et Jardin est lร  pour votre projet de construction de maison.

Vous souhaitez obtenir un devis gratuit de la part de ce constructeur.
C'est ici, en deux clics !

ยซย *ย ยป indique les champs nรฉcessaires

Newsletter

ยซย *ย ยป indique les champs nรฉcessaires

Plans 2D

Plans 3D

Obtenir le prix de cette maison

ยซย *ย ยป indique les champs nรฉcessaires

Newsletter

Vues Intรฉrieures

Publicitรฉ

Visite Virtuelle

A dรฉcouvrir sur Plans.fr